Positiva Compañía de Seguros Logo
Invitación pública
Nº1 - 2023
Hombre feliz levantando la mano

Estado: En proceso

Identificación Del Proceso

Invitación pública / Nº1 - 2023

Presupuesto oficial estimado

7.877.703.785.oo

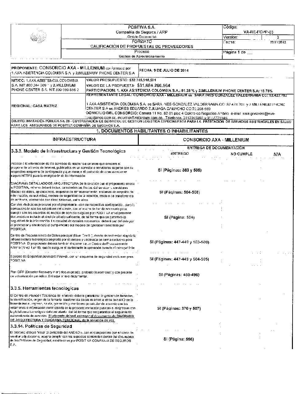
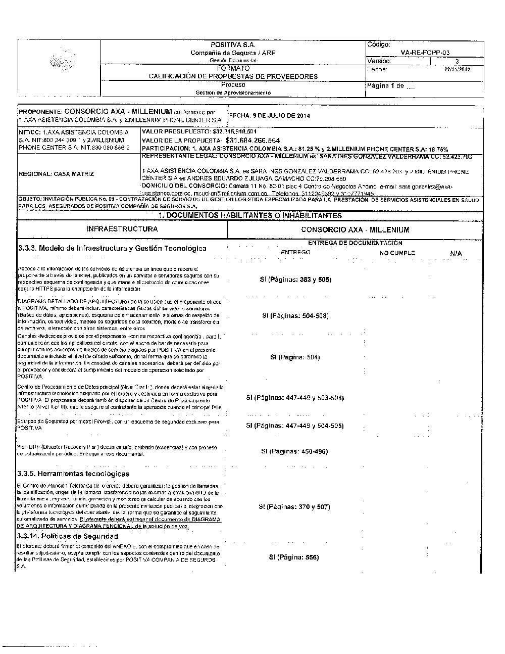
Documentos

5 VERIFICACION TECNOLOGIA INFRAESTRUCTURA (1).pdf

Copyright © 2025 | Todos los derechos reservados

flecha
flecha

Cookies

Utilizamos cookies propias y de terceros para mejorar nuestros servicios.

Aviso de Cookies
Saltar al contenido principal
× ¿Te puedo ayudar?